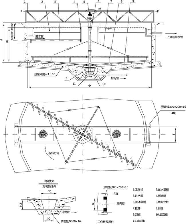
产品介绍:用途: 行车式刮泥机适用于给排水工程中平流式沉淀池,将沉降在池底的污泥刮集至集泥槽,并将池面的浮渣撇向集渣槽。可根据用户的要求设置浮渣刮板。按水流方向,可分为逆向刮泥逆向排渣和逆向刮泥同向排渣方式。刮泥机构在不刮泥回程时刮泥耙全部抬起。当回到刮泥的起始位置时,刮泥耙落下,这

用途: 行车式刮泥机适用于给排水工程中平流式沉淀池,将沉降在池底的污泥刮集至集泥槽,并将池面的浮渣撇向集渣槽。可根据用户的要
求设置浮渣刮板。按水流方向,可分为逆向刮泥逆向排渣和逆向刮泥同向排渣方式。刮泥机构在不刮泥回程时刮泥耙全部抬起。当回到
刮泥的起始位置时,刮泥耙落下,这样周而复始的工作。工作原理:刮泥机由行车、刮泥耙、撇渣板、驱动装置和自控柜等到组成。 1、两槽同设一端:刮泥耙下降、撇渣板下降→刮泥机由池端(出水端)始点向泥、渣槽端行驶,将污泥、浮渣刮集输送直至终点(进水
端)→刮泥耙上提、撇渣板上提→刮泥机终端向始端换向行驶→抵达始端后停机或进行另一循环。 2、两槽分设两端:刮泥耙下降,撇渣板上提→刮泥机由出水端始点向泥槽端行驶.将污泥刮集输送直至终点→刮泥耙上提而撇渣板
下降→刮泥机换向行驶将浮渣撇向浮渣槽→抵达始端后停机或进行另一循环。
|
参数型号 |
ZCG-5 |
ZCG-6 |
ZCG-8 |
ZCG-10 |
ZCG-12 |
ZCG-14 |
ZCG-16 |
|
|
池径Φ(m) |
5 |
6 |
8 |
10 |
12 |
14 |
16 |
|
|
周边池深H (m) |
3.5~4.5(根据用户要求定) |
|||||||
|
池边水深H2 (m) |
3.0~4.0(根据用户要求定) |
|||||||
|
外缘线速度V (m/min) |
2.0~3.0 |
|||||||
|
电机功率N (KW) |
0.37 |
0.55 |
0.75 |
|||||
|
安装尺寸mm |
B |
1050 |
1250 |
|||||
|
Φ1 |
1000 |
1200 |
||||||
|
Φ2 |
500 |
800 |
||||||
|
H2 |
700 |
1000 |
||||||
|
B1 |
根据用户要求定 |
|||||||
|
工作桥二端载荷P (KN) |
30 |
33 |
36 |
40 |
48 |
55 |
65 |
|
|
大工作扭矩(N.m) |
19 |
22.5 |
45 |
56 |
67 |
100 |
122 |
|
上一篇:没有了!
下一篇:中心传动刮泥机